Elevador Automotivo Pórtico Cargo Hidráulico EC PH 4.2 TON
Compatível com:
EsportivosPickupsHatches e sedansVansSUV15660
O Elevador Automotivo Emaster EC 4.2 Cargo se destaca como a solução ideal para oficinas mecânicas que exigem um equipamento com grande capacidade de elevação.
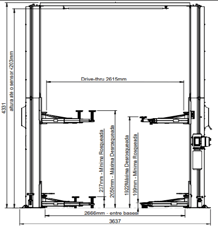
Com seus 4,2m de vão livre até o sensor de teto, esse elevador tem capacidade para elevar diversos tipos de camionetes e principalmente as vans como Ford Transit, Fiat Ducato e Mercedez Sprinter.
Sua capacidade de carga total é de 4.200 kg, altura de elevação de 2 metros e design pórtico que elimina a base inferior, proporcionando maior facilidade nos serviços de reparação.
Selecione seu opcional:
Informações Técnicas
| Capacidade de carga: | 4.200 Kg |
| Sistema de Equalização: | Cabos de aço |
| Sistema de acionamento: | Por botoeira |
| Potência do Motor: | 2,2 KW |
| Voltagem: | 220V |
| Distância entre colunas/Largura Externa: | 2,83m / 3,63m |
| Altura total do Elevador/Altura sob o sensor: | 4,33m/4,2m |
| Acessórios de Série: | Sensor de teto, 12 chumbadores, 2 jogos de sapatas (1 redondo e outro quadrado para camionetes) |
Itens de Série
-
Trava Braços Automático
Os elevadores com o sistema TBA (Trava braços automático), possuem maior segurança de operação pois fazem de forma automática o bloqueio do movimento involuntário dos braços quando o veículo está suspenso.
– Sistema único no mercado nacional.
– Braços quando estão no nível do piso se movimentam livremente.
– Quando o veículo é suspenso, os quatro braços travam automaticamente não sendo necessário intervenção do mecânico.
-
Set-up Rápido
Braços STR – Setup rápido. Aumenta a produtividade do posto de trabalho, reduzindo o tempo de operação na troca dos apoios.
Ao contrário do sistema convencional onde os apoios das sapatas são rosqueados diretamente nas ponteiras dos braços, este sistema possui uma camisa com rosca que apenas se encaixa na ponteira.
Com este sistema, sempre que for necessário trocar os apoios de veículos leves para elevar uma camionete(ou vice-versa), não é necessário desrosquear os 4 apoios e rosquear os novos mas apenas retirá-los ganhando assim, um tempo considerável na produtividade do mecânico.
-
Braços Bi-Telescópicos
Esses braços oferecem maior flexibilidade do uso do elevador automotivo facilitando trabalhar tanto com veículos pequenos quanto de maior dimensão.
Com este sistema de braços, é possível ajustar da melhor forma a posição dos braços do seu elevador automotivo com os corretos pontos de apoio do veículo.
Veja o que nossos clientes falam da gente
-
Alemão | Scapneus
‘Eu entendi que investindo um pouco mais no elevador hidráulico Cargo 4.2 eu tenho uma abrangência maior de veículos para trabalhar, além de poder atuar com a linha de vans que é um nicho que tem pouca gente atuando hoje.’
-
Nilson Patrone
“Emaster é uma marca que a gente já entende que tem muita qualidade e pra mim os elevadores sem a base “H” embaixo é muito importante pois facilita muito o dia a dia da oficina, não atrapalha pra passar o carrinho de ferramentas e sem falar na segurança desses elevadores.”
Perguntas Frequentes
-
O elevador automotivo hidráulico utiliza cilindros hidráulicos e unidade motriz com óleo pressurizado para realizar a elevação do veículo. O sincronismo entre as duas colunas é realizado através de um sistema de cabos de aço.
Já o modelo de elevador eletromecânico opera com fusos e porcas motrizes. O sincronismo entre as duas colunas, é realizado através de engrenagens interligadas por uma corrente.
A vantagem do sistema hidráulico está na suavidade da operação e menor ruído na descida que, por sua vez, é realizada através de gravidade. Ambos os sistemas são seguros e eficazes — a escolha ideal depende do perfil de uso da oficina. -
Sim, de modo geral, o elevador hidráulico automotivo costuma exigir menos manutenção corretiva do que o modelo eletromecânico. Isso acontece porque ele tem menos peças móveis sujeitas a desgaste como fusos, porcas, correias ou correntes.
No entanto, assim como nos elevadores eletromecânicos os elevadores hidráulicos demandam de manutenção preventiva como troca do óleo da unidade hidráulica, reaperto dos cabos de aço bem como a troca dos mesmos após 5 anos de uso.
-
O elevador automotivo hidráulico da Emaster utiliza cilindros com óleo sob pressão, acionados por uma unidade hidráulica de até 20 MPa. A elevação é feita por botoeira de 24V, e a descida não consome energia elétrica, tornando o sistema mais econômico.
A segurança é garantida por travas mecânicas independentes nas duas colunas e sensores de limite de curso.
-
A Emaster oferece diversas opções de elevadores hidráulicos automotivos, como:
• EC 3.5 PH (3.500 kg)
• EC 4.1 PH (4.100 kg)
• EC 4.2 Pórtico Hidráulico Cargo (4.200 kg).
Todos os modelos são robustos, com braços de três estágios, trava de segurança automática e conformidade com a NR-12. A linha contempla tanto versões de coluna quanto pórtico, conforme a necessidade da oficina
-
Sim. A linha de elevadores hidráulicos automotivos da Emaster inclui modelos com capacidade de carga acima de 4 toneladas, como o EC 4.1 PH (4.100 kg) e o EC 4.2 Pórtico Hidráulico Cargo (4.200 kg).
Esses modelos são ideais para pick-ups, vans e utilitários maiores, com braços de alta resistência e sistema hidráulico seguro e confiável.
-
O elevador hidráulico Emaster consome energia apenas durante a subida do veículo. A descida é feita por gravidade, sem consumo elétrico, o que torna o sistema mais eficiente energeticamente. Além disso, o acionamento é feito em 24V, oferecendo mais segurança ao operador.
-
Sim, a Emaster possui modelos de elevadores hidráulicos que atendem rigorosamente à NR-12. Esses modelos são equipados com:
• Botoeira de emergência
• Sensores de teto e de limite de curso
• Comandos em 24V
• Travas mecânicas
• Etiquetas de segurança
• Manuais técnicos
Além disso, acompanham laudo técnico assinado por engenheiro responsável.
-
Os elevadores hidráulicos da Emaster são equipados com um sistema mecânico de travas de segurança automáticas que atuam diretamente nas colunas para garantir a estabilidade e segurança durante a operação, mesmo em caso de falha no sistema hidráulico.
Durante a subida
À medida que o elevador sobe, o conjunto móvel (onde os braços estão fixados) que possui uma série de cavidades na parte de trás da peça, passa por uma trava de segurança.
Essa trava de segurança está localizada em um ponto fixo da coluna e fica constantemente em posição de encaixe durante o acionamento de subida através de um sistema de molas.
Ao atingir cerca de 60 cm do chão, a trava mecânica entra em ação automaticamente. Se houver falha hidráulica ou parada repentina, o conjunto móvel é imediatamente travado nestes entalhes, impedindo que o veículo desça de forma descontrolada.
Durante a descida
Quando o botão de descida é acionado, os conjuntos móveis descem até encostarem nas travas.
Neste ponto, o peso do veículo passa a ser sustentado exclusivamente pelas travas mecânicas, e não pelo sistema hidráulico. Isso reduz a fadiga do sistema e evita vazamentos ou afrouxamento prematuro.
Destravamento para descida total
Para liberar as travas e permitir a descida completa do veículo, o operador deve:
1. Acionar o botão de subida por 2 a 3 segundos (aliviando o peso das travas).
2. Acionar simultaneamente a alavanca de destravamento, que puxa os cabos de aço ligados às travas de ambas as colunas.
3. Ao liberar as travas, o botão de descida pode ser pressionado normalmente.
Segurança adicional:
• As travas são fabricadas em aço tratado e testadas para suportar cargas conforme a capacidade nominal do elevador.
• O sistema é mecânico, passivo e redundante, ou seja, atua independentemente do funcionamento do sistema hidráulico ou elétrico.
• Em modelos pórtico, a atuação é sincronizada por cabos de tração, garantindo destravamento simultâneo em ambas as colunas.
-
Sim, desde que seja utilizado o apoio adequado. A Emaster oferece apoios em “U” desenvolvidos especialmente para veículos com chassi tipo longarina, como caminhonetes e picapes.
Dessa forma, é garantida total estabilidade durante a elevação e segurança para realizar serviços como troca de pneus, manutenção da suspensão ou alinhamento.
-
Os principais diferenciais incluem:
• Sistema hidráulico com válvula limitadora de fluxo
• Travas mecânicas que não sobrecarregam os cilindros
• Descida sem consumo elétrico
• Sensor de teto para evitar danos ao veículo
• Braços de três estágios com trava automática
• Setup rápido para troca dos apoios (STR)
Tudo isso com fabricação nacional, 5 anos de garantia estendida e suporte técnico especializado.

